Álomszép környezetben két generáció számára is alkalmas ház újszerű állapotban várja Dömsödöm új lakóit
Eladó újszerű, kétgenerációs 96 m²-es ház Dömsödön – 2400 m²-es…
57.500.000Ft
Eladó
75.900.000Ft





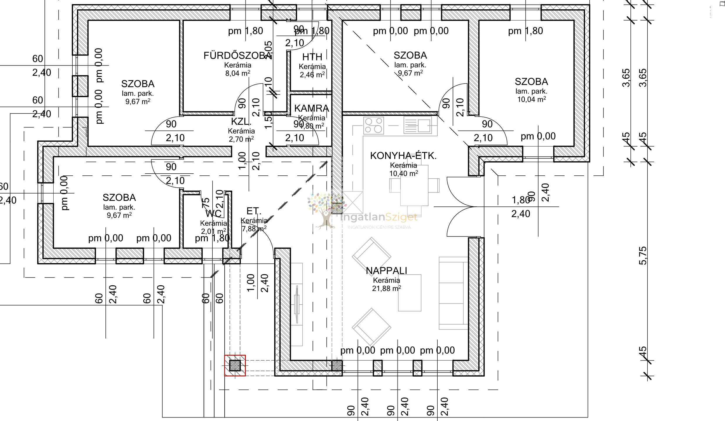
Ráckeve kedvelt, nyugodt lakóövezetében, új építésű házak között, eladásra kínálunk egy földszintes, önálló családi házat, amely egy 592 m²-es telken helyezkedik el. Az ingatlan nettó 96m²-es, átgondolt, jól élhető alaprajzzal és minőségi kivitelezéssel készül.
Műszaki tartalom – minőség és kényelem egyben:
– Leier 30-as tégla falazat
– Fa födém és tetőszerkezet, Bramac betoncserép fedéssel
– Homlokzati szigetelés: 15 cm
– Háromrétegű, hő- és hangszigetelt nyílászárók
– Aljzatszigetelés: 10 cm
– Födémszigetelés: 20 cm
Teljesen körbekerített telek
Energiatakarékos fűtés és komfort:
– Korszerű hőszivattyús fűtés, minden helyiségben padlófűtéssel
– Melegvíz ellátás elektromos bojlerrel
Kényelmes, praktikus belső elrendezés:
-előszoba, Nappali, konyha+étkező, kamra, háztartási helyiség, fürdőszoba, külön WC, közlekedő,
-4 kényelmes méretű hálószoba,
A belső kialakítást még Te határozhatod meg!
A burkolatok, szaniterek és beltéri ajtók kiválasztására még lehetőség van, így valóban a saját ízlésedre formálhatod új otthonod.
Várható átadás: 2025 év vége
Céges kivitelezés – állami támogatások igénybe vehetők
Már 10% foglalóval leköthető, a további fizetési ütemezés rugalmasan, egyeztetés alapján történik a kivitelezővel
Miért éppen ez az ingatlan?
– Modern építés, energiatakarékos technológia
– Nagy telek, kertészkedéshez, játszótérhez, akár medencéhez is ideális
– Tágas nappali és négy különálló hálószoba – kiváló választás családosoknak
– Csendes, nyugodt környezet, mégis könnyen elérhető a városközpont
További információkért, műszaki tartalomért és megtekintésért keressen bizalommal!
Finanszírozási lehetőségek: Az ingatlan megvásárlása esetén Belák Ilona Kinga, független hitelszakértő segít megtalálni az igényekhez leginkább illeszkedő finanszírozási megoldást, legyen szó állami támogatásokról vagy kedvező banki hitelről.
Amennyiben eladó ingatlana van, bízza ránk a munkát!
Irodánk teljes körű segítséget nyújt az értékesítésben – a hirdetéstől az adásvételi szerződés megkötéséig végig Ön mellett állunk. Tapasztalatunkkal, megbízhatóságunkkal és ügyfélközpontú hozzáállásunkkal garantáljuk, hogy az eladás gyorsan, gördülékenyen és biztonságosan történjen meg.
Eladó újszerű, kétgenerációs 96 m²-es ház Dömsödön – 2400 m²-es…
57.500.000Ft
Új építésű családi ház szerkezetkész állapotban eladó Makádon – tágas…
40.900.000Ft
Ráckeve belvárosában – különleges hangulatú ház történelmi környezetben Ráckeve történelmi…
64.900.000Ft
Ráckeve belvárosához közel – tágas, 3 szintes családi ház külön…
79.900.000Ft
Irodáink:
2300 Ráckeve Vörösmarty u. 5.
2340 Kiskunlacháza Dózsa György út 237
Nyitvatartás: hétfő – péntek 8:30 – 16:00 óráig
Telefonon MINDIG elérhetőek vagyunk!
Hangulatos, két szintes családi ház eladó Kiskunlacházán, a Duna-part közelében!
Owning a home is a keystone of wealth… both financial affluence and emotional security.
Suze Orman