Eladó új építésű családi ház Ráckeve újonnan épülő övezetében!
Eladó új építésű családi ház Ráckeve újonnan épülő övezetében! Fedezze…
99.900.000Ft 109.900.000Ft
Eladó
75.900.000Ft





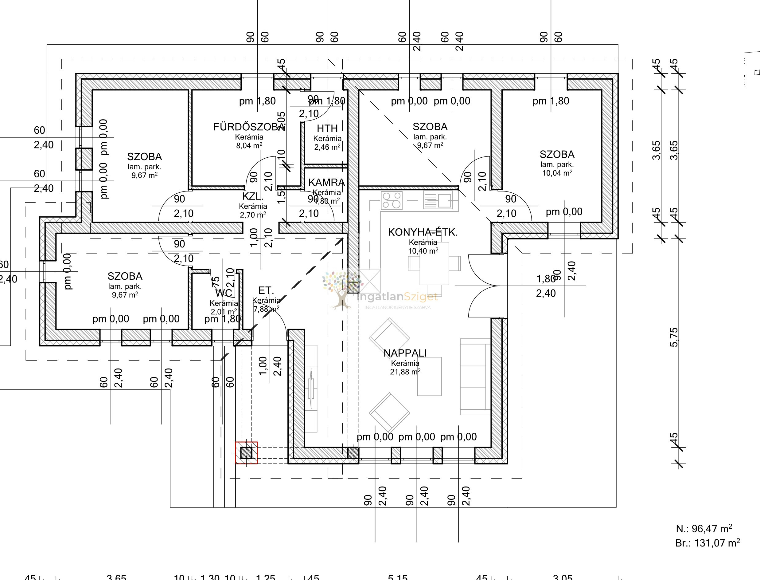
Ráckeve kedvelt, nyugodt lakóövezetében, új építésű házak között, eladásra kínálunk egy földszintes, önálló családi házat, amely egy 592 m²-es telken helyezkedik el. Az ingatlan nettó 96m²-es, átgondolt, jól élhető alaprajzzal és minőségi kivitelezéssel készül.
Műszaki tartalom – minőség és kényelem egyben:
– Leier 30-as tégla falazat
– Fa födém és tetőszerkezet, Bramac betoncserép fedéssel
– Homlokzati szigetelés: 15 cm
– Háromrétegű, hő- és hangszigetelt nyílászárók
– Aljzatszigetelés: 10 cm
– Födémszigetelés: 20 cm
Teljesen körbekerített telek
Energiatakarékos fűtés és komfort:
– Korszerű hőszivattyús fűtés, minden helyiségben padlófűtéssel
– Melegvíz ellátás elektromos bojlerrel
Kényelmes, praktikus belső elrendezés:
-előszoba, Nappali, konyha+étkező, kamra, háztartási helyiség, fürdőszoba, külön WC, közlekedő,
-4 kényelmes méretű hálószoba,
A belső kialakítást még Te határozhatod meg!
A burkolatok, szaniterek és beltéri ajtók kiválasztására még lehetőség van, így valóban a saját ízlésedre formálhatod új otthonod.
Várható átadás: 2025 év vége
Céges kivitelezés – állami támogatások igénybe vehetők
Már 10% foglalóval leköthető, a további fizetési ütemezés rugalmasan, egyeztetés alapján történik a kivitelezővel
Miért éppen ez az ingatlan?
– Modern építés, energiatakarékos technológia
– Nagy telek, kertészkedéshez, játszótérhez, akár medencéhez is ideális
– Tágas nappali és négy különálló hálószoba – kiváló választás családosoknak
– Csendes, nyugodt környezet, mégis könnyen elérhető a városközpont
További információkért, műszaki tartalomért és megtekintésért keressen bizalommal!
Finanszírozási lehetőségek: Az ingatlan megvásárlása esetén Belák Ilona Kinga, független hitelszakértő segít megtalálni az igényekhez leginkább illeszkedő finanszírozási megoldást, legyen szó állami támogatásokról vagy kedvező banki hitelről.
Amennyiben eladó ingatlana van, bízza ránk a munkát!
Irodánk teljes körű segítséget nyújt az értékesítésben – a hirdetéstől az adásvételi szerződés megkötéséig végig Ön mellett állunk. Tapasztalatunkkal, megbízhatóságunkkal és ügyfélközpontú hozzáállásunkkal garantáljuk, hogy az eladás gyorsan, gördülékenyen és biztonságosan történjen meg.
Eladó új építésű családi ház Ráckeve újonnan épülő övezetében! Fedezze…
99.900.000Ft 109.900.000Ft
Ráckevén a Fő utca közvetlen szomszédságában Eladó 4 szobás Újépítésű…
55.000.000Ft
Kiskunlacházán belterületi, építési telek eladó Kiskunlacháza Duna-parti részén kínálunk önnek…
19.900.000Ft
Makádon, a természetközeli, csendes és barátságos hangulatú településen kínálunk megvételre…
29.500.000Ft
Irodáink:
2300 Ráckeve Vörösmarty u. 5.
2340 Kiskunlacháza Dózsa György út 237
Nyitvatartás: hétfő – péntek 8:30 – 16:00 óráig
Telefonon MINDIG elérhetőek vagyunk!
Hangulatos, két szintes családi ház eladó Kiskunlacházán, a Duna-part közelében!
Owning a home is a keystone of wealth… both financial affluence and emotional security.
Suze Orman