Építési telek, új építésű részen, Kiskunlacházán
Kiskunlacházán belterületi, építési telek eladó Kiskunlacháza Duna-parti részén kínálunk önnek…
19.900.000Ft
Eladó
64.900.000Ft







Szeretne egy modern, energiatakarékos otthont csendes, zöldövezeti környezetben? Akkor ez a szigetszentmártoni új építésű sorházi lakás tökéletes választás lehet Önnek!
Főbb jellemzők:
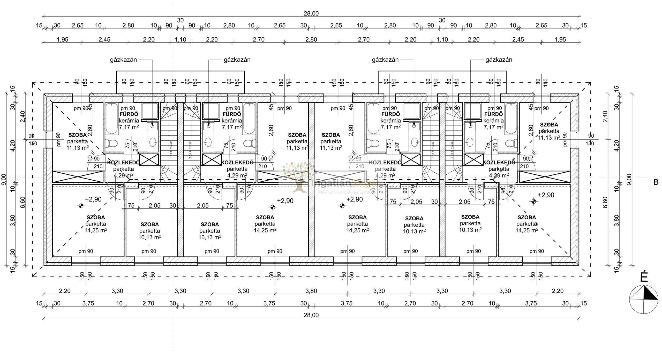
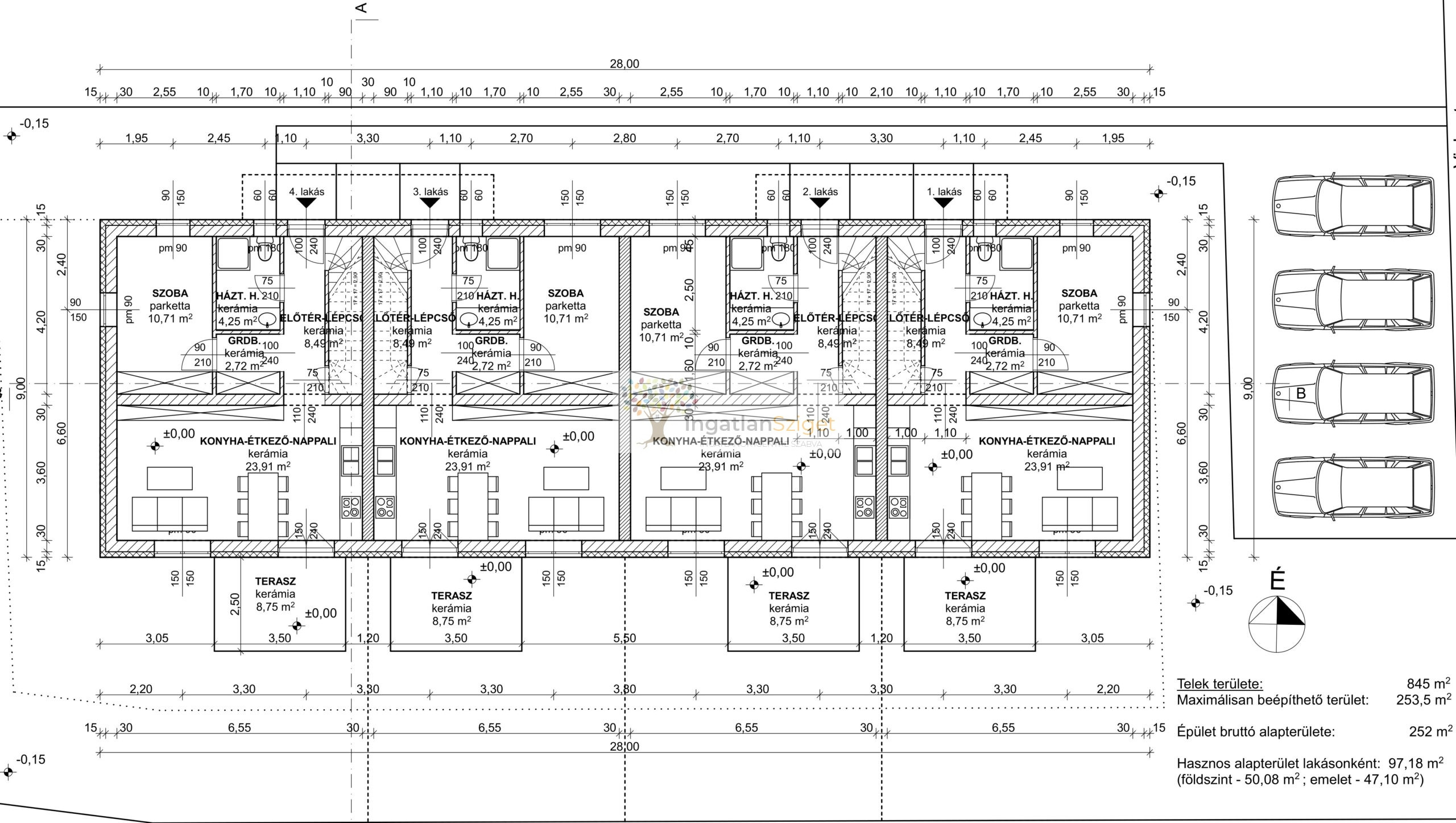
– 97 m² hasznos alapterület – Kényelmes, két szintes elrendezés
– 4 szoba – Ideális családok számára
– Kiváló minőségű építés – Téglafalazat, Silka hanggátló téglafal a lakások között (nincs áthallás!)
– Energihatékony szigetelés – 10 cm lábazati, 10 cm lépésálló aljzati, 15 cm homlokzati, 30 cm födém
– Modern fűtési rendszer – Gázkazán, padlófűtés + nagyteljesítményű hűtő-fűtő klíma
– Prémium nyílászárók – 3 rétegű üvegezésű műanyag ablakok
– telek – 293 m² vagy 122 m²-es, tökéletes kikapcsolódásra
– Térkövezett parkoló – Kényelmes és rendezett környezet
Lakások:
1. lakás: 197nm telekkel – 67,9M ft.- ELADVA
2. lakás: 122nm telekkel – 64,9M ft.-
3. lakás: 122nm telekkel – 64,9M ft.-
4. lakás: 293nm telekkel – 72,9M ft.-
Elhelyezkedés:
Szigetszentmárton Budapesttől mindössze 30 km-re található, könnyen elérhető HÉV-vel, Volánbusszal vagy autóval. A Duna-part közelsége páratlan lehetőséget kínál horgászatra, kirándulásra és pihenésre!
Környék és infrastruktúra:
– Iskola, óvoda, közért, posta, gyógyszertár, orvosi rendelő, autószerviz, virágüzlet és szépségszalon a közelben
– Hajókikötő és szabadstrand a Duna-parton
– Zöldövezeti, családbarát környezet, összetartó közösség
CSOK IGÉNYBE VEHETŐ!
Ne maradjon le erről a fantasztikus lehetőségről! Keressen bizalommal további információért és megtekintésért!
Kiskunlacházán belterületi, építési telek eladó Kiskunlacháza Duna-parti részén kínálunk önnek…
19.900.000Ft
Ipari terület eladó Ráckevén – beépíthető telek, irodával, magánúttal, kiváló…
51.900.000Ft
Kiskunlacháza egyik legkedveltebb részén, mindössze 100 méterre a Dunától kínálunk…
49.900.000Ft
Irodáink:
2300 Ráckeve Vörösmarty u. 5.
2340 Kiskunlacháza Dózsa György út 237
Nyitvatartás: hétfő – péntek 8:30 – 16:00 óráig
Telefonon MINDIG elérhetőek vagyunk!
ÚJSZERŰ ÁLLAPOTÚ, MODERN CSALÁDI OTTHON SZIGETCSÉPEN – KÉNYELEM ÉS NYUGALOM!
Owning a home is a keystone of wealth… both financial affluence and emotional security.
Suze Orman